


95 000 ₽/м²
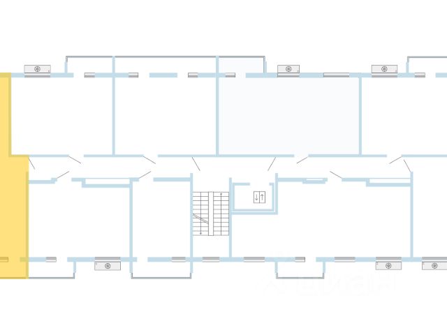
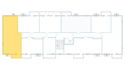
ЖК ЭЛЕМЕНТ Уютная квартира с функциональной планировкой и просторной лоджией Квартира сдается в базовой отделке: готова стяжка пола и установлены счетчики, лоджии остеклены и заведен кабель для подключения интернета. Качественные металлические входные двери с надежной фурнитурой. Дополнительно вы можете выбрать любой вид отделки от застройщика — "whitе bох" или "whitе bох PRO" с полностью готовым санузлом, а также "под ключ" в стиле Утро или Вечер. Все подъезды оборудованы колясочными и бесшумными лифтами. Безбарьерная среда и лифт с нулевой отметки — идеально для перевозки велосипедов и колясок. - дизайнерские холлы с прозрачными входными группами - семейный подъезд с тремя просторными квартирами на площадке - освещение от датчиков движения. Двор с изюминкой Вертикальная детская площадка с полимерным покрытием, многоуровневое озеленение, мягкое освещение, беседка с чайной зоной для отдыха. Закрытая территория! Все рядом 44-я и 59-я гимназии, 42 и 22 школы 3 детских сада и детская поликлиника школа искусств и 2 спорткомплекса парк культуры имени 40-летия ВЛКСМ супермаркеты "Магнит" и "Пятерочка". Данная квартира располагается на 5-м этаже в 3-м подъезде. Продается 2-комнатная квартира на 5 этаже в Ульяновской области.

















































































































