64 235 ₽/м²
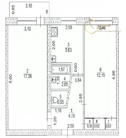
Аукцион на право заключения договора купли-продажи недвижимого имущества, находящегося в залоге у Банка ВТБ (ПАО): двухкомнатная квартира 50. 3 кв. м по адресу: , Ульяновская область, г. о. город Димитровград, г Димитровград, ул Восточная, д. 42, кв. 39. Кадастровый номер: 73:23:011604:317. в рамках процедуры банкротства должника. Начальная цена продажи имущества: 3 231 000, 00 ₽; Шаг аукциона: 5%; Размер обеспечения участия в аукционе: 20 %; Дата начала приема заявок: с 06. 04. 2026 08:00 по МСК; Дата и время окончания приема заявок: 18. 05. 2026 08:00 по МСК; Начало подачи предложений о цене имущества: 18. 05. 2026 10:00. Место проведения аукциона: Российский аукционный дом. Ссылка на торги: https://catalog. lot-online. ru/index. php?dispatch=products. view&product_id=1599179. Продается 2-комнатная квартира на 5 этаже в Димитровграде.






































































