Арт. 117084359 Самая лучшая планировка для Вашей семьи в ЖК Аквамарин с панорамным окном и невероятно красивым видом на Свиягу.
Квартира расположена на 5 этаже 24-этажного дома.
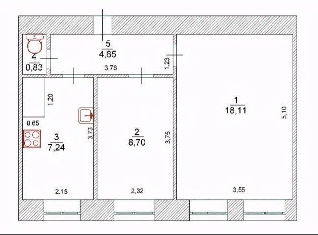
Общая площадь квартиры 58,5 кв.м. Жилые комнаты при этом 19,4, 10,7, кухня 12,8, коридор 10,4 кв.м.
По фотографиям видно, как наполняется светом эта квартира и какой невероятно красивый вид из окна открывается на город и Свиягу. Квартира удачно расположена на этаже: рядом нет соседей, есть возможность оставлять в подъезде не только велосипеды и коляски, но даже обувь, так как есть небольшая ниша рядом с дверью. Также из преимуществ моно отметить то, что из окна можно видеть и детскую площадку, и путь до школы, и до Аквамолла: можно быть спокойным за свои детей. Из преимуществ планировки можно выделить просторный увеличенный санузел, вместительный коридор. Ну и конечно большая гостиная комната с двумя окнами, одно из которых панорамное.
В квартире выполнен современный ремонт в светлых базовых тонах. Использованы качественные материалы. В комнате и на кухне постелен ламинат, в санузле - кафельная плитка. На стенах поклеены дорогие обои. Потолки натяжные, светильники установлены. В куне установлен кухонный гарнитур с техникой. В комнате - диван и кондиционер. Санузел оснащен хорошей сантехникой. В коридоре уже встроен шкаф, сделана дополнительная подсветка. Вся мебель и техника остается в квартире.
Главные преимущества дома - это хорошее месторасположение, спальный район, при этом все находится в шаговой доступности, рядом набережная реки Свияга, а также большая ухоженная территория, зеленые насаждения, гулять в этом районе одно удовольствие.
Во дворе имеется несколько современных детских площадок, достаточное количество парковочных мест.
В минуте ходьбы ТЦ "Аквамолл", магазины, аптеки, кафе. Также в пешей доступности поликлиника, садики и школы. Территория закрытая, есть видеонаблюдение, все совершенно безопасно. Также одним из преимуществ можно назвать то, что дом находится в глубине двора, в квартире очень тихо, не слышно шум с набережной и с детских площадок, но вид из окна на Свиягу открывается при этом прямой.
РЕМОНТ:
- Пластиковые окна, двойные стеклопакеты,
- Натяжные потолки и светильники,
- Обои в светлых тонах,
- Высокопрочный ламинат, кафельная плитка,
- Надежная входная дверь,
- Кондиционер,
- Совмещенный санузел, новая сантехника.
ИНФРАСТРУКТУРА:
- ТЦ "Аквамолл",
- Школа 7;
- Детские садики;
- Супермаркеты: "Ашан", "Гулливер", "Пятерочка", "Магнит",
- Аптеки внутри ЖК;
- Остановки общественного транспорта.
ЛЕГКО КУПИТЬ:
- 1 взрослый собственник,
- Все виды сертификатов, в т.ч. материнский капитал.
Гарантия юридической чистоты сделки от компании.
Звоните Записывайтесь на показ объекта прямо сейчас.
Рады будем ответить на все ваши вопросы с 9:00 до 21:00.