59 091 ₽/м²
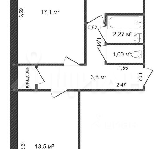
Продам двухкомнатную квартиру по пр.Димитрова,37А. Этаж-5. Дом панельный, 5-тиэтажный. Был кап.ремонт дома в 2023 году- заменена крыша, заменена система отопления (новые трубы отопления, новые биметаллические радиаторы), сделан ремонт подъезда. Умный видеодомофон. Квартира очень теплая, светлая, НЕ УГЛОВАЯ, очень уютная!! Общая площадь квартиры 50,5 кв.м., зал 18 кв.м., спальня 14 кв.м., кухня 6 кв.м., балкон 3 кв.м.- выход из зала! ОТЛИЧНАЯ ПЛАНИРОВКА!! Просторные комнаты,в спальне есть большая гардеробная- очень вместительная. Перепланировок не было с момента сдачи дома. Все окна пластиковые!! Балкон остеклен металлической рамой- раздвижная конструкция, облагорожен!! Квартира ухоженная. Натяжные потолки со встроенными светильниками придают атмосферу уюта и вносят гармонию в интерьер!! Напольное покрытие: качественный линолеум. Ванная, санузел раздельные- отделка кафельной плиткой, напольная плитка!!! Заменена вся сантех.разводка труб на полипропилен, установлены счетчики воды. Новый счетчик эл.энергии. Подводка под стир.машину выведена в прихожую- отлично размещается стиральная машина-автомат, что значительно экономит место в ванной комнате. Очень надежная и современная входная дверь!!. Свое парковочное место во дворе дома. Удачное местоположение дома- рядом остановки, пед.лицей 25, школа 23, бассейн Дельфин, детские сады, медицинский центр СИТИЛАБ, все магазины: Гулливер, Фабрика качества, НАХОДКА, Торговый Центр и др.!! Квартира свободная, без долгов и обременений. Ключи в день сделки!! Остается практически вся мебель, что на фото (кроме стиральной машины). Отличные, дружелюбные соседи!! Уютная, комфортная квартира ждет своих покупателей!!! Реальному покупателю разумный торг!!








































