123 970 ₽/м²
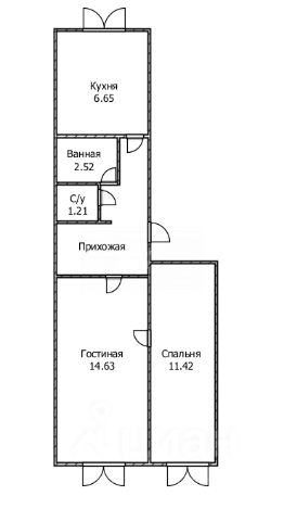
Продается 1-комн. квартира на 4 этаже в 64 доме в малоэтажном квартале LETO. ЖК LETO квартал с выразительной архитектурой, расположенный в Юго-Западном микрорайоне. Отличительная черта всех домов ЖК LETO квартиры с придомовыми террасами с приватным входом. Камерность квартала идеально подойдет любителям загородного стиля жизни, ценящим городской комфорт. Преимущества дома: • Квартиры отделкой на выбор: строительный вариант и предчистовая отделка. • Можно приобрести квартиру с полной меблировкой, идеально подходящей под размеры квартиры и тип дизайнерской отделки. • На окнах и балконах энергоэффективные двойные стеклопакеты. • В каждой квартире индивидуальное отопление, а также регулировка температуры в каждой комнате. • Скатная крыша дома придает выразительный внешний вид и защищает от дождей и влаги благодаря чердачному этажу. • Красивый, выразительный облик квартала. Просторные входные группы. • Камерность проживания и добрососедство благодаря минимуму соседей. • Красивое современное благоустройство: детские площадки преимущественно из натуральных материалов, брусчатка в пешеходных зонах, масштабное озеленение во дворах, внутри квартала лиственные и плодовые деревья. • Коммерческие помещения на первом этаже, предусмотренные для услуг и продукции для жителей квартала. • Развитая инфраструктура и удобная городская среда в шаговой доступности: три детских сада, Губернаторский лицей, детская поликлиника, супермаркет "Гулливер", гипермаркеты "Лента", "Леруа Мерлен", спортивный комплекс "Татьяна Арена", вещевой рынок, Александровский парк, аквапарк "Улет", КартХолл. Действуют спецпрограммы покупки жилья: • TRADE-IN от застройщика с компенсацией расходов • льготная ипотека • все виды сертификатов в качестве первоначального взноса, включая маткапитал и военную ипотеку. Звоните, чтобы забронировать квартиру!

















































