Первичная продажа



Семейная ипотека 6%
ещё 4 акции
сдача ГК: 3 кв. 2028 года
4 328 268 ₽
144 276 ₽/м²
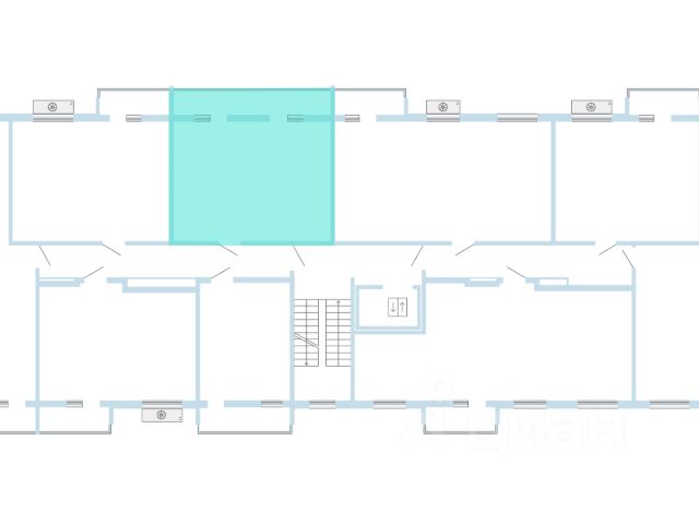
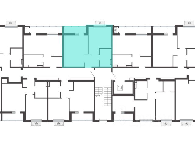
В Заволжском районе Ульяновска продается 1-комнатная квартира площадью 30.00 кв. м. Квартира расположена на 2 этаже 10 корпуса в жилом комплексе Центрополис 2.0.
Центрополис 2.0 - новый перспективный проект, который является логичным продолжением уже знакомого проекта от ГК "Железно" Центрополис. Расположенный на берегу Волги, комплекс имеет отличную транспортную доступность и инфраструктуру на уровне центра города.
Архитектура
Архитектурная концепция "Центрополис 2.0" - еще более современного прочтения, чем у "Центрополис". На фасадах присутствует многообразие форм, текстур и фактурных материалов, для отделки использована благородная штукатурка, что придает комплексу одновременную простоту и элегантность. Доказано, что архитектура влияет на эмоциональное состояние человека и формирует его мировоззрение - именно поэтому облик нового "Центрополиса" продуман до мелочей.
Входные группы
Уникальная особенность общественных пространств - инновационный подход к оформлению интерьера. В МОПы внедрен салютогенный дизайн, направленный на улучшение здоровья и самочувствия людей. Максимум дневного света, свежий и чистый воздух, нейтральная цветовая гамма с акцентами в природных тонах и минимализм в интерьере создают атмосферу порядка, структуры и понятности.
Благоустройство
По задумке авторов проекта, в основе благоустройства лежит концепция "Острова", где дворы символизируют ландшафтные регионы России, объединенные единой артерией -рекой вдоль центральной аллеи. Каждый двор соответствует уникальной тематике, многоуровневое освещение создает атмосферу уюта. Тихие зоны отдыха украшает всесезонное озеленение и геопластика холмов, в активных зонах - протяженные велодорожки, площадки для командных игр и прочное оборудование в природной гамме. В уютных двориках расположены площадки для самых маленьких, а в ландшафтных аллеях - зоны для детей среднего и старшего возраста.
Инфраструктура
Комплекс расположен в экологически чистой зоне центра Нового города, в шаговой доступности - Прибрежный парк и живописный берег Волги. Район обеспечен всей необходимой инфраструктурой, достаточно нескольких минут, чтобы дойти до детского сада, лицея, супермаркета или салона красоты. Купить 1-комнатную квартиру на 2 этаже в Ульяновской области.

















































































































