Мы используем куки-файлы. Соглашение об использовании
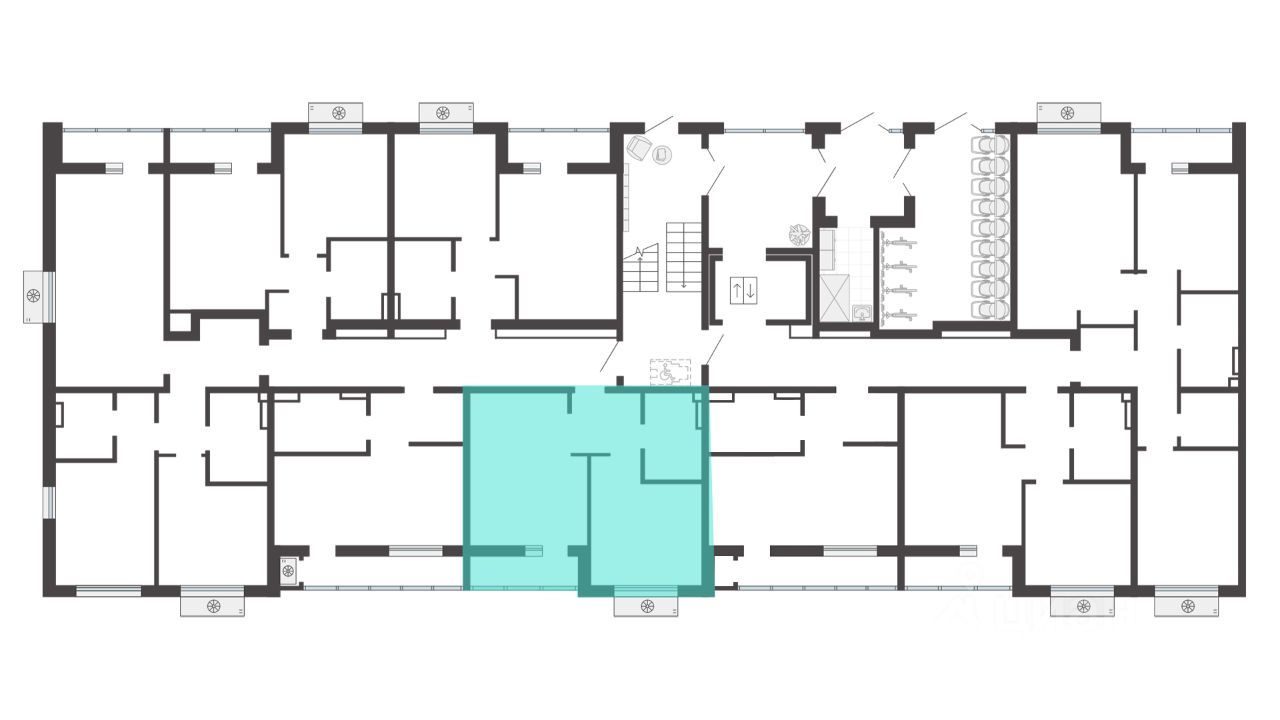
Общая площадь36 м²
Жилая площадь11,4 м²
Площадь кухни14,9 м²
Этаж1 из 7
Год сдачи2028
ДомНе сдан
ОтделкаЧистовая
В Заволжском районе Ульяновска, рядом с Прибрежным парком, продается 1-комнатная квартира площадью 36.00 кв. м. с чистовой отделкой. Квартира находится на 1 этаже дома 4 комплекса комфорт-класса "Светлые кварталы" (Застройщик - ГК "Железно"). Комфортная жизнь на приватной территории в самом центре Нового города. Жилой комплекс "Светлые кварталы" - жизнь на светлой стороне! Светлый образ Архитектура "Светлых кварталов" лаконична и в тоже время хорошо узнаваема. Фасады разработаны в строгой геометрии линий, в материалах используются природные фактуры, а цветовое сочетание глубоких натуральных оттенков усиливает ощущение упорядоченности и ясности строения. Лаконичные формы дополняются акцентным элементом главного фасада, который придает индивидуальность и узнаваемость объекту. "Светлые кварталы" сохраняют за человеком право на небо и солнце, не загораживая их высотой небоскребов. Дома проекта построены по принципу соразмерной для человека среды и представляют собой переменную застройку. Светлое детство На безопасной территории закрытых дворов, где нет машин и посторонних людей, для маленьких жителей создаются пространства для игр, творчества и изучения мира. Такое интересное детство останется в памяти на всю жизнь. Ландшафтное всесезонное озеленение радует жителей круглый год, а яркие арт-объекты придают общественным пространствам свой собственный уникальный стиль. На территории жилого комплекса запроектированы площадки для занятий спортом и пространства для релакса. С наступлением вечера "Светлые кварталы" преображаются. Светящиеся качели, разноуровневая подсветка игровых элементов, ландшафтные и архитектурные световые акценты создают особую, неповторимую атмосферу прямо во дворе. Светлый интерьер Подъезды комплекса всегда наполнены светом солнца благодаря остекленным входным группам. Жители чувствуют себя в безопасности, потому что в их поле зрения есть все, что происходит и на улице, и в холле. Особую атмосферу внутренних пространств создают графичные ломаные линии, световое оформление и акцентные детали. Такая комфортная среда формирует у людей социальную ответственность за сохранность эстетики в местах общего пользования, жители "Светлых кварталов" берегут красоту в своих подъездах. Успейте приобрести квартиру в центре Нового города и привнести в свою жизнь новый свет!

О квартире

Тип жилья

Новостройка

Общая площадь

36 м²

Жилая площадь

11,4 м²

Площадь кухни

14,9 м²

Высота потолков

2,7 м

Санузел

1 совмещенный

Балкон/лоджия

1 лоджия

Вид из окон

Во двор

Отделка

Чистовая

О доме

Количество лифтов

1 пассажирский

Тип дома

Панельный

Понравилась квартира — узнайте о ней больше

Застройщик ответит на все вопросы

Отделка квартиры

Чистовая: ремонт сделан, остаётся расставить мебель и заселиться

Отделка в ЖК

  • Чистовая
  • Предчистовая
  • Без отделки

3D-тур

Посмотрите 3D-тур, чтобы оценить объект
Похоже на то, что вы ищете?

Акции в ЖК «Светлые кварталы»

Узнайте про персональные условия и дополнительные скидки при покупке квартиры у застройщика
logo

Скидка до 10%

Ипотечный калькулятор
  • Базовая
  • Семейная
  • ИТ-ипотека
  • 20%
  • 30%
  • 40%
  • 50%
лет
  • 10 лет
  • 20 лет
  • 30 лет
Загружаем предложения от застройщика и банков

Расположение

Корпус проверен наш.дом.рф
Обновлено 21 апреля 2026
  • Нет в реестре проблемных объектов
  • Застройщик не банкрот
  • Есть эскроу счёт
  • Актуальные фото стройки

Ещё квартиры в жилом комплексе

75 квартир в продаже · Сдача в 2027—2028, есть сданные
Автор объявления

Застройщик «Железно»

Надежный застройщик
«Железно» — федеральный девелопер со смыслом, создающий умные среднеэтажные мини-города с развитой инфраструктурой и высоким уровнем сервиса. За 13 лет беспрерывного развития и стремительного роста компания точно определила своё предназначение: мы с любо...
5 204 808 ₽
Цена за метр
144 578 ₽/м²
Условия сделки
долевое участие (214-ФЗ)
5 регионов страныВ которых строят жилые дома и коммерческую недвижимость
Больше 800 человекРаботают в компании
139 755 м²Ввели в эксплуатацию с 2021 года