Мы используем куки-файлы. Соглашение об использовании
Только на Циан
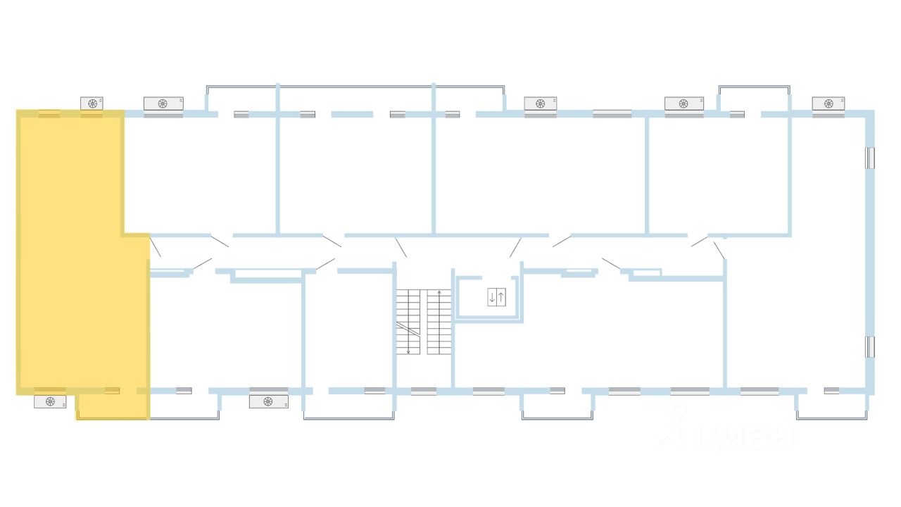
Общая площадь65 м²
Жилая площадь24,6 м²
Площадь кухни16,7 м²
Этаж4 из 9
Год сдачи2028
ДомНе сдан
ОтделкаБез отделки
Финальный дом проекта УЛЛА! В новом доме комфорт-класса продается 2-комнатная квартира площадью 65.00 кв. м . Квартира находится в доме 3 в жилом комплексе УЛЛА от федерального застройщика "Железно". Транспортная доступность и окружение - 2 автобусные остановки в минуте ходьбы; - 10 минут до парка в сосновом бору "40 лет ВЛКСМ"; - Удобный выезд к Президентскому мосту и Димитровградскому шоссе; - Прибрежный парк, яхт-клуб и пляж у реки Волги в 10 минутах на машине. Концепция архитектуры Новый корпус в полной мере отражает архитектурную концепцию всего жилого комплекса. Внешний вид дома "Комфорта" вдохновлен формами и оттенками природы. В отделке сочетаются керамические панели и мокрый фасад. Архитектурные особенности подчеркивает декоративное освещение. В итоге получился лаконичный и в то же время стильный облик, соразмерный человеку - именно в такой обстановке люди получают психологическое ощущение комфорта. Благоустройство с финским акцентом Для удобства и безопасности жителей дворы жилого комплекса находятся на огороженной территории. В природный ландшафт, созданный дизайнерами, гармонично вплетены игровые площадки ВИКИНГ для детей всех возрастов, спортивный комплекс "Гранит" для активностей на свежем воздухе, уютные зоны отдыха, качели и беседки с навесами. Главным местом притяжения станет озелененная площадь, в благоустройстве которой использованы натуральные материалы, а акцентными элементами выступают топиарная фигура "Викинг" и продуманное освещение. Стильные МОП Общий стиль проекта продолжают входные группы. В каждом подъезде реализован авторский дизайн, где акцент сделан на практичность и современный минимализм. Удобная и понятная навигация позволяет гостям быстро найти нужную квартиру. Для колясок и велосипедов предусмотрено специальное помещение, доступ в которое есть только у жителей дома. Дополнительные преимущества: - Собственная УК; - Система "Умная квартира" от Мажордом; - Большой выбор планировочных решений; - Различные варианты отделки на выбор. Успейте приобрести квартиру на выгодных условиях! Чтобы узнать подробности, обращайтесь за консультацией по телефону.

О квартире

Тип жилья

Новостройка

Общая площадь

65 м²

Жилая площадь

24,6 м²

Площадь кухни

16,7 м²

Высота потолков

2,7 м

Санузел

1 совмещенный, 1 раздельный

Балкон/лоджия

1 лоджия

Вид из окон

На улицу и двор

Отделка

Без отделки

О доме

Количество лифтов

1 пассажирский

Тип дома

Панельный

Понравилась квартира — узнайте о ней больше

Застройщик ответит на все вопросы

Варианты отделки в ЖК

  • Чистовая
  • Предчистовая
  • Без отделки

3D-тур

Посмотрите 3D-тур, чтобы оценить объект

О ЖК «Улла»

  • Сдача комплекса
    Сдача в 4 кв. 2028, есть сданные
  • Застройщик
    Железно
  • Класс
    Комфорт
  • Тип дома
    Панельный
  • Парковка
    Гостевая
  • Отделка
    Без отделки, предчистовая, чистовая
  • Тип комплекса
    Жилой комплекс
Похоже на то, что вы ищете?

Особенности жилого комплекса

  • Внутренний двор

  • Парки

  • Архитектура

  • Входная группа

  • Лифт

Подробнее о жилом комплексе

Акции в ЖК «Улла»

Узнайте про персональные условия и дополнительные скидки при покупке квартиры у застройщика

Рассрочка

logo

Скидка до 15% на квартиру

logo

Скидка до 5% на квартиру

logo

Скидка до 10% для врачей и учителей

Трейд-ин от застройщика.

Ипотечный калькулятор
  • Базовая
  • Семейная
  • ИТ-ипотека
  • 20%
  • 30%
  • 40%
  • 50%
лет
  • 10 лет
  • 20 лет
  • 30 лет
Загружаем предложения от застройщика и банков

Расположение

Корпус проверен наш.дом.рф
Обновлено 21 апреля 2026
  • Нет в реестре проблемных объектов
  • Застройщик не банкрот
  • Есть эскроу счёт
  • Актуальные фото стройки

Ещё квартиры в жилом комплексе

75 квартир в продаже · Сдача в 4 кв. 2028, есть сданные
Автор объявления

Застройщик «Железно»

Надежный застройщик
«Железно» — федеральный девелопер со смыслом, создающий умные среднеэтажные мини-города с развитой инфраструктурой и высоким уровнем сервиса. За 13 лет беспрерывного развития и стремительного роста компания точно определила своё предназначение: мы с любо...
7 681 950 ₽
Цена за метр
118 184 ₽/м²
Условия сделки
долевое участие (214-ФЗ)
5 регионов страныВ которых строят жилые дома и коммерческую недвижимость
Больше 800 человекРаботают в компании
139 755 м²Ввели в эксплуатацию с 2021 года