Мы используем куки-файлы. Соглашение об использовании
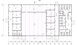
Помещение свободного назначения, 450 м²
Площадь450 м²
Этаж1 из 1
КлассC
Продается здание 450 кв.м. на земельном участке 4230 кв.м. - здание новое, в данный момент используется как столовая. - центральная вода и канализация. - отопление газ, автономное. - вся площадь земельного участка асфальтирована. - территория огорожена и охраняется. - рядом расположены крупные складские комплексы - имеются участки под дополнительную застройку или готовые складские комплексы.
lock

Войдите или зарегистрируйтесь
для просмотра информации

Просматривайте условия сделки и всю информацию об объекте
Сохраняйте фильтры в поиске и не вводите заново
Доступ к избранному с любого устройства
Неограниченное добавление в избранное
Позвоните автору
Вам ответят на все вопросы
Остались вопросы по объявлению?
Позвоните владельцу объявления и уточните необходимую информацию.
  • Инфраструктура
  • Похожие рядом
Помощь надёжных риелторов
Риелтор партнёр Циан поможет купить или продать любую недвижимость
Агентство недвижимости
Суперагент
31 000 000 ₽
413 993 $
353 168
Цена за метр
68 889 ₽
Налог
НДС включен: 5 590 163 ₽
Агентство недвижимости
Суперагент
На Циан
10 лет
Объектов в работе
92