Мы используем куки-файлы. Соглашение об использовании
Площадь6 800 м²
Этаж1 из 5
КлассC
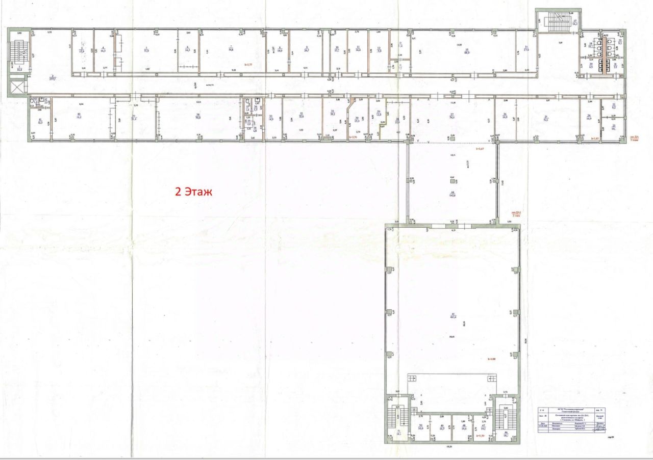
Описание Бизнес центр Офис Здание 6800 м2 БЕЗ КОМИССИИ ДЛЯ ПОКУПАТЕЛЯ! Номер объекта в базе # 20233 Площадь: 6800 кв.м Основное здание 5 этажей, общая используемая площадь=1309м2*5этажей=6545м2 Площадь 1 этажа основного здания: 85м2/15,4м2=1309м2 Площадь малого корпуса с переходом: 43,7/18,5м2=809 Площадь основного здания 1 этажа, перехода и малого корпуса=2118м Площадь основного 5-ти этажного здания, перехода и малого корпуса=7354м2 Приблизительная территория земельного участка, которое можно взять в аренду 1,8 га Этажность: подвал и 5 этажей Все коммуникации проведены Состояние: в ожидании инвестора! Доступ в помещение: 24/7 Электроснабжение: 100 кВт Высота потолков: 3,5 и выше! Кол-во входов: 3 отдельные! Санузел: Совмещённый Назначение: Без профиля, любое коммерческое использование Примечание: Развитая инфраструктура, в непосредственной близости: детские сады, школы, спортивные комплексы, городская набережная, магазины, - Соседство с крупными предприятиями с большими трудовыми коллективами. - Удобное транспортная развязка: - 5 минут от цента города - остановки общественного транспорта с различными маршрутами - Отличный выезд на Димитровградское шоссе и трассу Р-241 "Казань-Ульяновск" Продажа: 120 млн. рублей DAEVROPA с радостью поможет вам найти лучшее решение, соответствующее вашим требованиям и финансовым возможностям. Звоните или пишите — мы всегда на связи!
lock

Войдите или зарегистрируйтесь
для просмотра информации

Просматривайте условия сделки и всю информацию об объекте
Сохраняйте фильтры в поиске и не вводите заново
Доступ к избранному с любого устройства
Неограниченное добавление в избранное
Позвоните автору
Вам ответят на все вопросы
Остались вопросы по объявлению?
Позвоните владельцу объявления и уточните необходимую информацию.
  • Инфраструктура
  • Похожие рядом
Помощь надёжных риелторов
Риелтор партнёр Циан поможет купить или продать любую недвижимость
120 000 000 ₽
1 615 155 $
1 355 182
Цена за метр
17 648 ₽
Налог
НДС включен: 21 639 344 ₽
Агентство недвижимости
Суперагент