Мы используем куки-файлы. Соглашение об использовании
Помещение свободного назначения, 768 м²

Продается помещение свободного назначения, 768 м²

Площадь768 м²
Этаж1 из 2
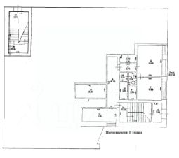
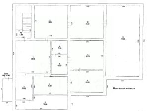
Продаются нежилые помещения площадью 768 кв. м в 2-этажном кирпичном здании. 1 этаж 99 кв. м, 2 этаж 363 кв. м, подвал 306 кв. м — складские помещения. Центральная часть поселка. Есть парковка. В здании расположено отделение Почты России, филиал банка, рядом церковь, стадион, библиотека, Дом культуры. Отдельный вход. Год постройки 1991. Разрешенная мощность 10 кВт. Коммуникации центральные: водоснабжение, электроснабжение, канализация. Земельный участок площадью 1872 кв. м в долгосрочной аренде. Продажа от собственника — юридического лица ПАО "Ростелеком". Цена указана с учетом НДС. Не является офертой. Звоните! С удовольствием ответим на все вопросы.
lock

Войдите или зарегистрируйтесь
для просмотра информации

Просматривайте условия сделки и всю информацию об объекте
Сохраняйте фильтры в поиске и не вводите заново
Доступ к избранному с любого устройства
Неограниченное добавление в избранное
Позвоните автору
Вам ответят на все вопросы
Остались вопросы по объявлению?
Позвоните владельцу объявления и уточните необходимую информацию.
  • Инфраструктура
  • Похожие рядом
  • Общая площадь768 м²
Помощь надёжных риелторов
Риелтор партнёр Циан поможет купить или продать любую недвижимость
1 565 667 ₽
21 847 $
18 797
Цена за метр
2 039 ₽
Налог
НДС включен: 282 333 ₽
Агентство недвижимости
Документы проверены