Мы используем куки-файлы. Соглашение об использовании
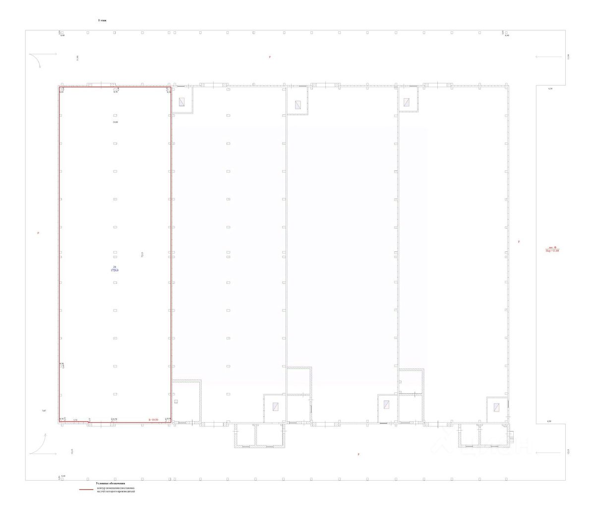
Площадь1 700 м²
Этаж1 из 1
ПомещениеСвободно
Сдаем в аренду современный складской комплекс площадью от 1700 до 4000 кв.м. Готов к работе с первого дня! Главные преимущества: Высота потолков 12 м - возможность организации многоуровневого хранения. Беспылевые полы и система вертикального хранения - для товаров с высокими требованиями к условиям хранения. Собственная техника в аренду: погрузчики и штабелеры. Эстакада, разворотная площадка, стоянка для грузового транспорта. Безопасность и доступность: Круглосуточная охраняемая территория, доступ 24/7. Асфальтированная площадка для удобной логистики. Расположение на первой линии - отличная транспортная доступность. Дополнительные возможности: Готовые офисные помещения на территории. Гибкая площадь - можно арендовать от 1700 до 4000 кв.м в зависимости от ваших задач. Идеально подходит для: оптовых компаний, дистрибьюторов, логистических операторов, производств, требующих современного складского хранения. Обсудим ваши требования и предложим лучшее решение! Звоните!
lock

Войдите или зарегистрируйтесь
для просмотра информации

Просматривайте условия сделки и всю информацию об объекте
Сохраняйте фильтры в поиске и не вводите заново
Доступ к избранному с любого устройства
Неограниченное добавление в избранное
Позвоните автору
Вам ответят на все вопросы
Остались вопросы по объявлению?
Позвоните владельцу объявления и уточните необходимую информацию.
  • Инфраструктура
  • Похожие рядом
  • Общая площадь1 700 м²
Помощь надёжных риелторов
Риелтор партнёр Циан поможет купить или продать любую недвижимость
Агентство недвижимости
Суперагент
340 000 ₽/мес.
4 471 $/мес.
3 794 /мес.
Цена за метр
2 400 ₽ в год
Налог
НДС включен: 61 311 ₽
Комиссия
нет
Коммунальные платежи
не включены
Эксплуатационные расходы
не включены
Агентство недвижимости
Суперагент
На Циан
10 лет
Объектов в работе
94