Мы используем куки-файлы. Соглашение об использовании
Помещение свободного назначения, 30 м²
Площадь30 м²
Этаж2 из 2
ПомещениеСвободно
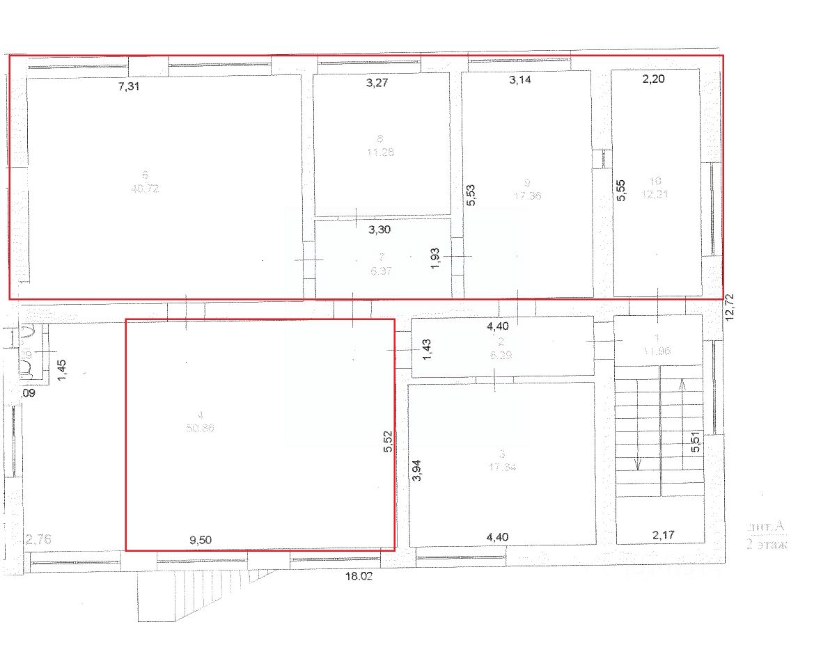
Сдаются в аренду помещения свободного назначения общей площадью 138,5 кв. м на 2 этаже. Возможна аренда различными частями. Все коммуникации в здании центральные. Отлично подойдет под офис, производство, спортивный зал, секции, фотостудию, оказание услуг, обслуживание населения и многое другое. Центр села рядом с Магнитом, Грошем, недалеко от Дома Культуры. В здании Почта России. Возможно размещение рекламной конструкции на фасаде здания, подключение городского телефона и высокоскоростного интернета. Аренда от собственника — юридического лица ПАО "Ростелеком". Цена указана с учетом НДС. Коммунальные услуги входят в арендную плату. Не является офертой. Звоните! С удовольствием ответим на все вопросы.
lock

Войдите или зарегистрируйтесь
для просмотра информации

Просматривайте условия сделки и всю информацию об объекте
Сохраняйте фильтры в поиске и не вводите заново
Доступ к избранному с любого устройства
Неограниченное добавление в избранное
Позвоните автору
Вам ответят на все вопросы
Остались вопросы по объявлению?
Позвоните владельцу объявления и уточните необходимую информацию.
  • Инфраструктура
  • Похожие рядом
  • Общая площадь30 м²
Помощь надёжных риелторов
Риелтор партнёр Циан поможет купить или продать любую недвижимость
6 900 ₽/мес.
91 $/мес.
78 /мес.
Цена за метр
2 760 ₽ в год
Налог
НДС включен: 1 230 ₽
Комиссия
100%
Коммунальные платежи
не включены
Эксплуатационные расходы
не включены
Агентство недвижимости
Документы проверены