Мы используем куки-файлы. Соглашение об использовании
Помещение свободного назначения, 20 м²

Сдается помещение свободного назначения, 20 м²

Площадь20 м²
Этаж2 из 2
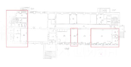
Сдаются в аренду помещения свободного назначения на 1, 2 и 3 этаже. Различные площади на 3х этажах. От 10 кв. м. Отлично под пункт выдачи, офис, небольшое производство, танцевальную школу для взрослых, компьютерного клуба и многого другого. 1 этаж 61,11 кв. м 2 этаж 100,5 кв. м кабинетная система 3 этаж 205,5 кв. м свободный зал 135 кв. м и кабинеты. Свежий ремонт. Центр посёлка. Первая линия. Высокий автомобильный и пешеходный трафик. Есть парковка. Рядом остановки общественного транспорта, Администрация, школа, детский сад, мечеть, музей, большой жилой массив. Возможно размещение рекламных конструкций на фасаде здания, подключение городского телефона, высокоскоростного интернета. Аренда от собственника — юридического лица ПАО "Ростелеком". Цена указана с учетом НДС. Не является офертой. Звоните! С удовольствием ответим на все вопросы.
lock

Войдите или зарегистрируйтесь
для просмотра информации

Просматривайте условия сделки и всю информацию об объекте
Сохраняйте фильтры в поиске и не вводите заново
Доступ к избранному с любого устройства
Неограниченное добавление в избранное
Позвоните автору
Вам ответят на все вопросы
Остались вопросы по объявлению?
Позвоните владельцу объявления и уточните необходимую информацию.
  • Инфраструктура
  • Похожие рядом
  • Общая площадь20 м²
Помощь надёжных риелторов
Риелтор партнёр Циан поможет купить или продать любую недвижимость
6 600 ₽/мес.
92 $/мес.
77 /мес.
Цена за метр
3 960 ₽ в год
Налог
НДС включен: 1 180 ₽
Комиссия
100%
Коммунальные платежи
не включены
Эксплуатационные расходы
не включены
Агентство недвижимости
Документы проверены