Первичная продажа



Семейная ипотека 6%
ещё 6 акций
Только на Циан
сдача ГК: 4 кв. 2028 года
6 741 060 ₽
118 264 ₽/м²
Финальный дом проекта УЛЛА!
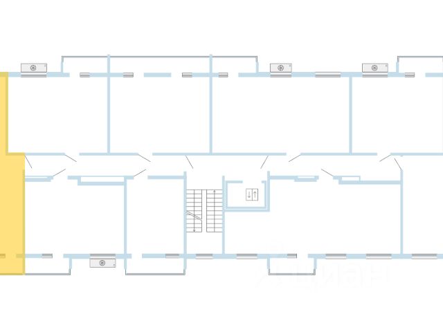
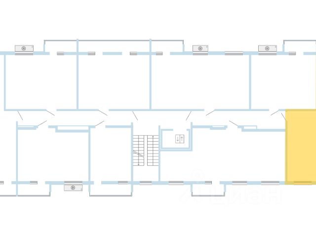
В новом доме комфорт-класса продается 2-комнатная квартира площадью 57.00 кв. м . Квартира находится в доме 3 в жилом комплексе УЛЛА от федерального застройщика "Железно".
Транспортная доступность и окружение
- 2 автобусные остановки в минуте ходьбы;
- 10 минут до парка в сосновом бору "40 лет ВЛКСМ";
- Удобный выезд к Президентскому мосту и Димитровградскому шоссе;
- Прибрежный парк, яхт-клуб и пляж у реки Волги в 10 минутах на машине.
Концепция архитектуры
Новый корпус в полной мере отражает архитектурную концепцию всего жилого комплекса. Внешний вид дома "Комфорта" вдохновлен формами и оттенками природы. В отделке сочетаются керамические панели и мокрый фасад. Архитектурные особенности подчеркивает декоративное освещение. В итоге получился лаконичный и в то же время стильный облик, соразмерный человеку - именно в такой обстановке люди получают психологическое ощущение комфорта.
Благоустройство с финским акцентом
Для удобства и безопасности жителей дворы жилого комплекса находятся на огороженной территории. В природный ландшафт, созданный дизайнерами, гармонично вплетены игровые площадки ВИКИНГ для детей всех возрастов, спортивный комплекс "Гранит" для активностей на свежем воздухе, уютные зоны отдыха, качели и беседки с навесами. Главным местом притяжения станет озелененная площадь, в благоустройстве которой использованы натуральные материалы, а акцентными элементами выступают топиарная фигура "Викинг" и продуманное освещение.
Стильные МОП
Общий стиль проекта продолжают входные группы. В каждом подъезде реализован авторский дизайн, где акцент сделан на практичность и современный минимализм. Удобная и понятная навигация позволяет гостям быстро найти нужную квартиру. Для колясок и велосипедов предусмотрено специальное помещение, доступ в которое есть только у жителей дома.
Дополнительные преимущества:
- Собственная УК;
- Система "Умная квартира" от Мажордом;
- Большой выбор планировочных решений;
- Различные варианты отделки на выбор.
Успейте приобрести квартиру на выгодных условиях!
Чтобы узнать подробности, обращайтесь за консультацией по телефону.

































































































































































